KO EN JA

Dev Model

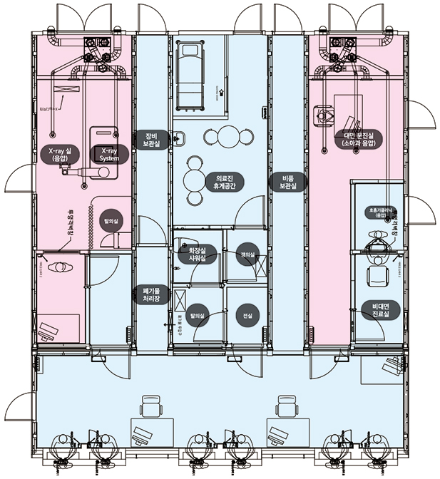
Disaster&Medical Model

Disaster & Medical - Placement Type (KICT Technical Support)

This is a multipurpose modular system optimized for disaster relief and medical facilities. Using basic and variable modules, it can be quickly assembled or disassembled, and space can be easily expanded as needed. It boasts excellent mobility and fast installation speed, and the optional solar panel system allows for energy-independent power supply. It is a system that can be rapidly deployed in emergency situations.
  • Usage : Government and local governments for disasters and emergencies, summer, Winter Olympics, domestic and international events, special purposes for recycling non-fixed buildings, etc
  • Expansion : Using n base and variable models together, you can scale the product in any direction you want.
  • Basic: 1 basic module (9.0m) + 1 variable module (3.0m)
  • Extended model: n variable module + n basic module multiple combinations
dev_sid_img01

- Versatile Expandable Modular Building (Modular & Module Connection)

dev_sid_img02


For product inquiries, please include any details you¡¯re curious about,
and we¡¯ll respond promptly.